WELKOM IN DE VAN VLOTENSTRAAT – EEN CHARMANT FAMILIEHUIS MET ZONNIGE ACHTERTUIN GELEGEN IN EEN RUSTIGE OMGEVING BIEDT DEZE WONING EEN PERFECTE THUIS VOOR U EN UW GEZIN.
In een rustige en kindvriendelijke omgeving staat dit sfeervolle jaren ’30 familiehuis met zonnige achtertuin. Hier woont u niet alleen in een comfortabele woning, maar ook in een buurt waar buren elkaar groeten en kinderen veilig buiten spelen. Een thuis met warmte, ruimte en gezelligheid – precies wat u zoekt.
De eengezinswoning verwelkomt u met een lichte woonkamer en achterkamer uitkijkend op een zonnige voor- en achtertuin. De ideale plek om te genieten van zonnige dagen. De woning wordt verrijkt met ruime slaapkamers.
Wat maakt deze buurt zo gezellig om te wonen?
Bij aankomst ervaart u direct de prettige sfeer van de buurt: rust, groen en met een gemoedelijke uitstraling. Kinderen spelen hier veilig op straat of in een van de nabijgelegen speeltuinen, terwijl buurtbewoners elkaar groeten tijdens een wandeling of een bezoek aan de lokale winkels. Van Vlotenstraat is echt zo’n straat waar je je meteen thuis voelt.
Kenmerken van de woning:
• Eigen grond
• Bouwjaar 1932
• Woonoppervlakte 100 m²
• Perceeloppervlakte 90 m²
• Charmante jaren ’30 eengezinswoning
• 4 slaapkamers
• Houten kozijnen met dubbele beglazing
• Zonnige en beschutte achtertuin
• Kindvriendelijke, rustige en groene buurt
• Uitstekende bereikbaarheid met OV en auto
• CV-combiketel voor verwarming/warmwater
• Oplevering: in overleg.
INDELING
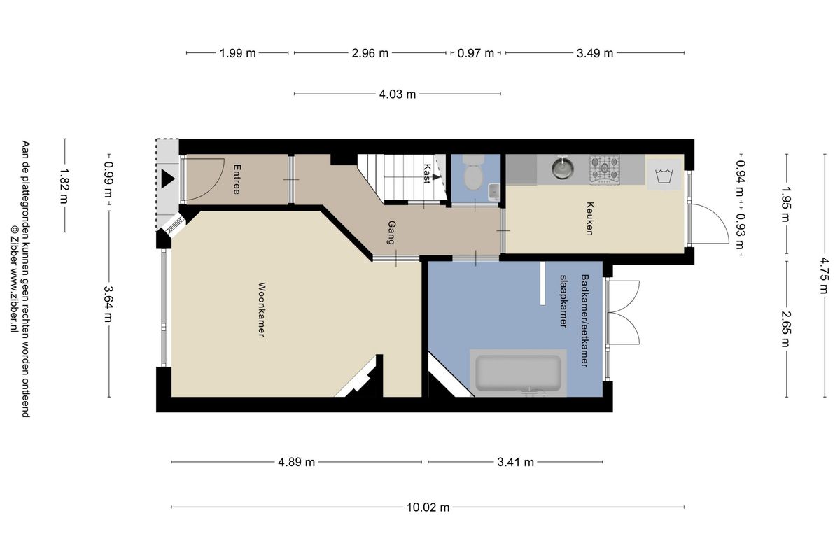
Begane grond
De woning verwelkomt u met een entreehal en garderobe.
Woonkamer en achterkamer (momenteel in gebruik als badkamer) lopen door over de volle lengte van het huis en bieden volop ruimte voor ontspanning en samenzijn. Vanuit de achterkamer kijkt u uit op de zonnige tuin – een heerlijke plek om te genieten van lange zomerdagen met familie en vrienden.
De keuken is praktisch en compleet ingericht met onder andere een kookfornuis met heteluchtoven, koel-vriescombinatie, veel opbergruimte en aansluiting voor wasmachine. Vanuit hier loopt u zo de beschutte tuin in, groot genoeg voor een gezellige eettafel én speelruimte voor kinderen.
In de gang treft u een separaat gastentoilet aan.
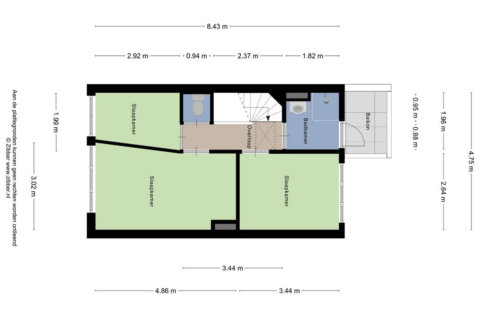
Verdiepingen
Op de eerste verdieping vindt u drie lichte slaapkamers, ideaal in te delen als kinderkamer, logeerkamer of werkplek. De badkamer beschikt over een douche, wastafelmeubel en een deur naar het balkon. Op dezelfde verdieping is een separaat toilet aanwezig.
De tweede verdieping verrast met een ruime zolderkamer voorzien van dakramen en veel bergruimte onder het schuine dak. Deze multifunctionele ruimte kan dienen als vierde slaapkamer, speelkamer of thuiskantoor. Hier bevindt zich tevens de standplaats van de cv-combiketel en mogelijkheid voor de aansluiting van de wasmachine.
Locatie
De locatie is ronduit ideaal. Alles wat u nodig heeft, ligt binnen handbereik. Van scholen, sportvelden, speeltuinen en buurtwinkels tot grotere winkelcentra zoals de Mega Stores en In de Bogaard.
Bovendien ligt het sfeervolle Oud Rijswijk op fietsafstand, net als het strand van Kijkduin – ideaal voor een dagje uitwaaien of een zomerse stranddag. Het strand van Scheveningen en het Scheveningse bos met de tram te bereiken. Groenliefhebbers kunnen hun hart ophalen in het nabijgelegen Zuiderpark of Park Overvoorde, waar u kunt wandelen, sporten of picknicken.
Op loopafstand vindt u meerdere tram- en busverbindingen, het NS-station Moerwijk en Hollands Spoor en Haagse Hoge School. Via de nabijgelegen uitvalswegen (A4, A12 en A13) bent u binnen enkele minuten onderweg naar Den Haag, Delft, Rotterdam of verder. Parkeren is mogelijk voor de deur, op de openbare weg.
Maak van dit huis uw thuis.
Neem vandaag nog contact op voor een bezichtiging en ontdek zelf de ruimte, de rust én de sfeer van deze heerlijke woning
Deze informatie is door ons met de nodige zorgvuldigheid samengesteld. Onzerzijds wordt echter geen enkele aansprakelijkheid aanvaard voor enige onvolledigheid, onjuistheid of anderszins, dan wel de gevolgen daarvan. Alle opgegeven maten en oppervlakten zijn indicatief.