Omschrijving

ENGLISH BELOW

Ben je op zoek naar een instapklaar appartement met een fijne sfeer, veel lichtinval én een ideale ligging?
Dan is dit goed onderhouden appartement op de tweede verdieping van de Rijnstraat precies wat je zoekt. Met een moderne keuken, ruime woonkamer, eigentijdse badkamer en aparte slaapkamer biedt dit appartement alles wat je nodig hebt om prettig te wonen.

Omgeving
De ligging is werkelijk ideaal. Aan de overkant vind je supermarkten en diverse winkels. In de directe omgeving bevinden zich bovendien scholen, kinderopvang en een speeltuinvereniging – perfect voor jonge gezinnen.
Voor liefhebbers van natuur en sport liggen de Hekslootpolder, het Noorder Sportpark, een moderne sportschool en een zwembad binnen handbereik. Met een korte fietstocht bereik je bovendien de prachtige duinen en het strand van Bloemendaal.

De bereikbaarheid is uitstekend: met de fiets ben je in een mum van tijd in het bruisende centrum van Haarlem. Via de nabijgelegen uitvalswegen rijd je zo richting Amsterdam, Alkmaar of Den Haag. Liever met het openbaar vervoer? De bushalte ligt letterlijk voor de deur en brengt je binnen enkele minuten naar het station.

Indeling
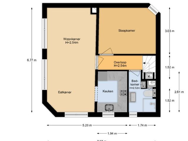
1e verdieping: toegang tot het appartement via een eigen hal.
2e verdieping: overloop met toegang tot de badkamer, slaapkamer en ruime woonkamer. De woonkamer biedt tevens toegang tot de halfopen keuken, die is voorzien van alle gemakken.

Pluspunten van deze woning
- Energielabel A
- Gratis parkeren voor de deur
- Goed onderhouden en instapklaar
- Centrale ligging met winkels en voorzieningen letterlijk om de hoek
- Notariskeuze verkoper

Mis deze kans niet!
Dit appartement is een buitenkans voor wie comfortabel wil wonen in een levendige, groene en goed bereikbare buurt van Haarlem. Plan snel een bezichtiging en laat je verrassen door de ruimte, het licht en de sfeer die deze woning te bieden heeft.

Disclaimer
Deze informatie is met de grootst mogelijke zorg samengesteld. Desondanks aanvaarden wij geen aansprakelijkheid voor eventuele onvolledigheden of onjuistheden, noch voor de gevolgen daarvan. Alle opgegeven maten en oppervlakten zijn indicatief. De koper heeft een onderzoeksplicht ten aanzien van alle zaken die voor hem of haar van belang zijn. De makelaar treedt op als adviseur van de verkoper met betrekking tot deze woning.
_______________________________________________________________________

Are you looking for a move-in-ready apartment with a pleasant atmosphere, plenty of natural light, and an ideal location?
Then this well-maintained apartment on the second floor of the Rijnstraat is exactly what you’re looking for. With a modern kitchen, spacious living room, contemporary bathroom, and separate bedroom, this apartment offers everything you need for comfortable living.

Surroundings
The location is truly ideal. Right across the street, you’ll find supermarkets and various shops. In the immediate area, there are also schools, daycare facilities, and a playground association—perfect for young families.
Nature and sports enthusiasts will love the nearby Hekslootpolder, Noorder Sportpark, modern gym, and swimming pool—all within easy reach. A short bike ride takes you to the beautiful dunes and the beach of Bloemendaal.

Accessibility is excellent: by bike, you can reach the vibrant center of Haarlem in no time. The nearby main roads provide quick access to Amsterdam, Alkmaar, or The Hague. Prefer public transport? The bus stop is literally right outside your door and takes you to the train station within minutes.

Layout
1st floor: Private entrance with access to the apartment.
2nd floor: Landing with access to the bathroom, bedroom, and spacious living room. The living room also connects to the semi-open kitchen, which is fully equipped with modern appliances.

Highlights of this property
- Energy label A
- Free parking in front of the building
- Well-maintained and move-in ready
- Central location with shops and amenities just around the corner
- Seller’s choice of notary

Don’t miss out!
This apartment is a fantastic opportunity for anyone looking to live comfortably in a lively, green, and well-connected neighborhood of Haarlem. Schedule a viewing soon and be surprised by the space, light, and atmosphere this home has to offer.

Disclaimer
This information has been compiled with the utmost care. Nevertheless, we accept no liability for any inaccuracies or omissions, nor for the consequences thereof. All stated dimensions and surface areas are indicative. The buyer has a duty to investigate all matters that are important to him or her. The real estate agent acts as an advisor to the seller regarding this property.
Lees meer

Kenmerken

Overdracht

Vraagprijs
€ 325.000,- k.k.
Status
beschikbaar
Aanvaarding
in overleg

Bouw

Soort woning
appartement
Soort appartement
bovenwoning
Aantal woonlagen
1
Woonlaag
2
Bouwvorm
bestaande bouw
Open portiek
nee
Huidige bestemming
woonruimte

Energie

Energielabel
A
Verwarming
c.v.-ketel
Warm water
c.v.-ketel

Oppervlakten en inhoud

Woonoppervlakte
51 m²

Indeling

Aantal kamers
2
Aantal slaapkamers
1

Garage / Schuur / Berging

Parkeergelegenheid
openbaar parkeren
Lees meer

Locatie

Interesse? Neem contact op met de makelaar!

Ik wil*