Omschrijving

Volledig gemeubileerd 3-kamer appartement in ’De Ananas’, Leiden

Dit lichte en ruime 3-kamer appartement in ’De Ananas’ wordt volledig gemeubileerd verhuurd. De minimale huurperiode is 12 maanden, daarna is het maandelijks opzegbaar.

Alles ligt dichtbij: supermarkten, restaurants, cafés en winkels zijn op loop- of fietsafstand. Het historische centrum van Leiden is in 5 minuten fietsen bereikbaar. Voor openbaar vervoer ligt een bus- en treinstation recht tegenover het gebouw, en met de auto is de snelweg snel bereikbaar.

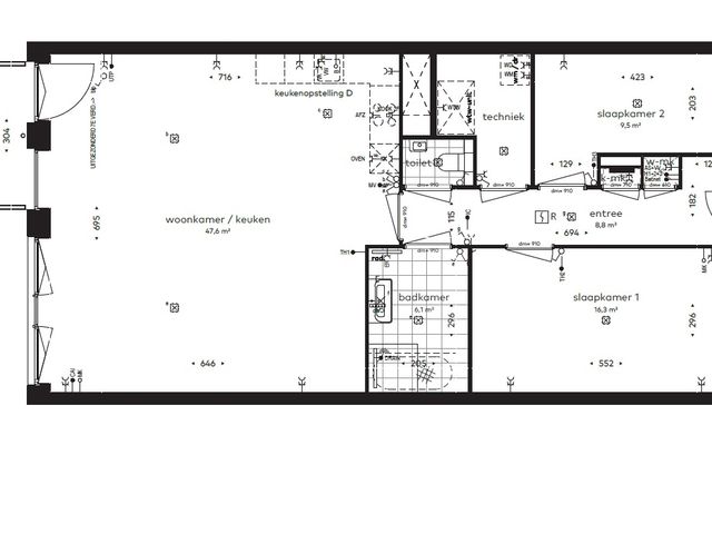
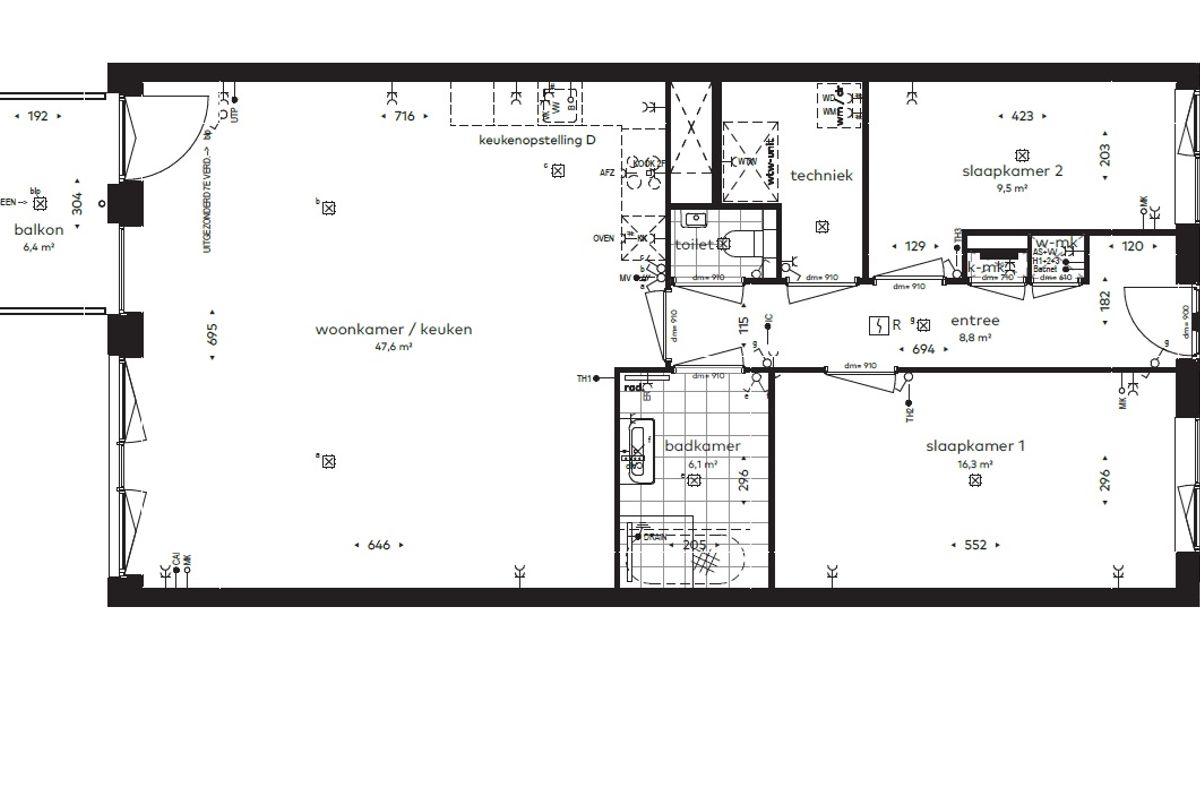
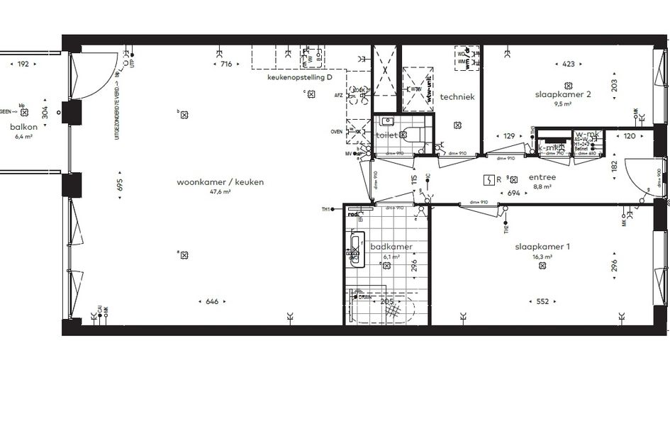
Indeling
Via lift of trap bereikt u de tweede verdieping en tevens de binnentuin van het complex. De hal biedt toegang tot alle vertrekken van het appartement. De woonkamer is licht en ruim, met een comfortabele zithoek en een grote eettafel. Vanuit de woonkamer is het balkon bereikbaar, dat uitzicht biedt op de rustige binnenplaats van het complex.

De moderne keuken is volledig uitgerust met inbouwapparatuur: combi-oven, vaatwasser, koelkast, vriezer en elektrisch fornuis met afzuigkap. De grote slaapkamer beschikt over een tweepersoonsbed en een ruime kast. De tweede slaapkamer kan gebruikt worden als studeer- of werkkamer. De badkamer is voorzien van een wastafel en een inloopdouche, en er is een apart toilet aanwezig.

Bijzonderheden
- Luxe badkamer met dubbele wastafel en douche;
- Aparte toiletruimte;
- Luxe keuken en voorzien van inbouwapparatuur;
- 2 slaapkamers;
- Gasloos met vloerverwarming en -koeling;
- Eigen berging en twee fietsplekken in gemeenschappelijke fietsenberging;
- (Gezamenlijk) Bruto jaarinkomen dient min. €122.400,- te bedragen;
- De woning is niet geschikt voor woningdelers en garantstellers;
- Per direct beschikbaar;
- Begroting servicekosten ca. € 38,- p/m;
- Parkeerplaats (optioneel) € 95,- p/m.

Interesse?
Neem contact op met ons kantoor voor meer informatie of het plannen van een bezichtiging.

Fully Furnished 3-Room Apartment in ’De Ananas’, Leiden

This bright and spacious 3-room apartment in ’De Ananas’ is fully furnished. The minimum rental period is 12 months, after which it can be terminated on a monthly basis.

Everything is nearby: supermarkets, restaurants, cafés, and shops are within walking or cycling distance. The historic center of Leiden is just a 5-minute bike ride away. A bus and train station is located directly opposite the building, and the highway is easily accessible by car.

Layout
Via the lift or stairs, you can reach the second floor as well as the complex’s courtyard. The hallway provides access to all rooms in the apartment. The living room is bright and spacious, featuring a comfortable seating area and a large dining table. From the living room, you can access the balcony, which overlooks the peaceful inner courtyard of the complex.

The modern kitchen is fully equipped with built-in appliances: a combi oven, dishwasher, refrigerator, freezer, and electric stove with extractor hood. The master bedroom has a double bed and a spacious wardrobe. The second bedroom can be used as a study or office. The bathroom features a sink and a walk-in shower, and there is a separate toilet.

Specialties
- Luxury bathroom with double sink and shower
- Separate toilet
- Modern kitchen with built-in appliances
- 2 bedrooms
- Gas-free with underfloor heating and cooling
- Private storage room and two bike spaces in the shared bicycle storage
- Gross annual income must be at least €122,400
- The property is not suitable for house-sharers or guarantors
- Available immediately
- Estimated service costs approx. €38 per month
- Parking space (optional) €95 per month

Interested?
Please contact our office for more information or to schedule a viewing.
Lees meer

Kenmerken

Overdracht

Huurprijs
€ 2.550,- p/m gemeubileerd
Status
onder optie
Aanvaarding
in overleg

Bouw

Soort woning
appartement
Soort appartement
portiekflat
Aantal woonlagen
1
Woonlaag
2
Kwaliteit
luxe
Bouwvorm
bestaande bouw
Bouwperiode
2011-
Open portiek
nee
Voorzieningen
mechanische ventilatie, tv kabel, lift, zonnecollectoren en glasvezel kabel

Energie

Energielabel
A+++
Verwarming
vloerverwarming geheel, warmtepomp en warmte terugwininstallatie

Oppervlakten en inhoud

Woonoppervlakte
97 m²
Buitenruimte oppervlakte
6 m²

Indeling

Aantal kamers
3
Aantal slaapkamers
2

Buitenruimte

Ligging
in woonwijk
Lees meer

Locatie

Interesse? Neem contact op met de makelaar!

Ik wil*