Louis Couperussingel 13
Louis Couperussingel 13
Louis Couperussingel 13
Louis Couperussingel 13
Louis Couperussingel 13
Louis Couperussingel 13
Louis Couperussingel 13

Louis Couperussingel 13

Amstelveen

€ 3.600,- p/m

Omschrijving

Louis Couperussingel, Amstelveen (ca. 153 m2) €3500,- excl. G/W/E
Deze ideale familiewoning van maar liefst 153 m2 biedt een spectaculair uitzicht over sierwater gelegen in een zeer kindvriendelijke en groene omgeving. De woning, voorzien van vier slaapkamers, twee badkamers en heerlijke zonnige achtertuin (zuidwesten) is een plek waar gezinnen zich zonder twijfel thuis voelen. Middels het openbaar vervoer (halte Westwijk op 400 m lopen) is Amsterdam Zuid in 20 minuten bereikbaar. Kortom, de woning en omgeving bieden een perfecte balans tussen het vrije woongenot en bereikbaarheid! De splitlevel indeling maakt deze gezinswoning uniek in zijn soort. De indeling, raampartijen en
plafondhoogte draagt bij aan een zeer lichte uitstraling in alle vertrekken. De keuken is open en staat in verbinding met de ruime woonkamer waarbij de plafondhoogte van bijna 4 meter een ware eye-catcher is.

Indeling:
Begane grond:
Via eigen voortuin toegang tot de inspringende voordeur, hal voorzien van moderne uitgebreide meterkast, separaat (gasten-)toilet voorzien van fonteintje, trapopgang met bergkast, glazen toegangsdeur naar open keuken. Moderne inbouwkeuken met bovenkasten en tegelwerk voorzien van alle gemakken
(gasfornuis, afzuigkap, brede spoelbak, vaatwasser) en zéér fraai zicht op sierwater. Aangrenzend is de riante woonkamer (ca. 50 m2 ) gelegen en voorzien
van brede schuifpui naar heerlijke achtertuin op het zuidwesten. Hierdoor voelt de achtertuin als een verlengde van de woonkamer. Het elektrische
zonnescherm aan de achtergevel tezamen met de enorme plafondhoogte maakt de woonkamer op warme zomerdagen extra behaaglijk. In de achtertuin bevindt zich een stenen (fietsen-)berging van ca. 8 m2 voorzien van elektriciteit. Middels het achterom is de achtertuin en berging praktisch bereikbaar.

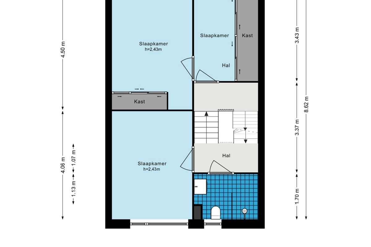
1e verdieping (split-level):
Trapopgang vanaf de begane grond naar speelse verdieping door splitlevel indeling. Aan de voor- en achterzijde totaal twee ruime slaapkamers waarvan één
met walk-in-closet (ca. 8 m2) en gedeelde moderne badkamer en toilet. De badkamer is ingedeeld met een grote inloopdouche, een wastafelmeubel met spiegel.
De indeling leent zich om de walk-in-closet aan te passen naar derde (kinder-)slaapkamer.

2e verdieping (split-level):
Open trapopgang vanaf de 1e verdieping. Op de verdieping zijn in totaal twee slaapkamers en een tweede badkamer aanwezig. De hoofdslaapkamer is zeer ruim
bemeten (ca. 20 m2) en voorzien van een woning brede glazen achterpui met openslaande deuren. De badkamer is ingedeeld met een grote inloopdouche, een
wastafelmeubel met spiegel en net weggewerkte kast voorzien van de centrale verwarming (Hr-ketel). Op de overloop is tevens een diepe opbergkast aanwezig welke
optioneel kan dienen als vaste kastenpartij voor de slaapkamer(s). De gehele woning is uitgerust met houten kozijnen en voorzien van dubbelglas. De verwarming vindt plaats middels centrale verwarming i.c.m. radiatoren. In de sanitaire ruimtes is luxe tegelwerk aanwezig.

Omgeving:
De wijk kenmerkt zich door diverse groenvoorzieningen, groene singels, waterpartijen en een grote variatie in ruim opgezette bebouwingen. Er is voldoende keuze aan basis-/ en middelbare scholen in de nabijheid (de brede basisschool Karel Eykman, de Westwijzer en de Triangel) alsmede de Internationale School en
diverse sportfaciliteiten voor jong en oud. Voor de dagelijkse boodschappen is het winkelcentrum Westwijk vlakbij of het Stadshart Amstelveen makkelijk te bereiken, een modern en luxe winkelgebied met tevens diverse uitgaansmogelijkheden. In de nabijheid zijn de nieuwe Uithoornlijn, de metrolijn 25 en de busverbindingen met directe verbinding naar het centrum van Amsterdam aanwezig. Ook zijn de uitvalswegen A9/A10/A2 en de N201 binnen handbereik gelegen, welke een directe verbinding naar Schiphol, Haarlem en Utrecht bieden.

Louis Couperussingel, Amstelveen (approx. 153 m²) €3500,- excl. G/W/E
This ideal family home of no less than 153 m² offers spectacular views over ornamental waterways, situated in a very child-friendly and green neighborhood. Featuring four bedrooms, two bathrooms, and a lovely sunny southwest-facing backyard, the house is a place where families will undoubtedly feel at home. Amsterdam Zuid is reachable in 20 minutes by public transport (Westwijk stop is a 400-meter walk away). In short, the house and its surroundings offer the perfect balance between living in freedom and accessibility! The split-level layout makes this family home unique. The layout, windows, and ceiling height contribute to a very bright feel in all rooms. The open-plan kitchen connects to the spacious living room, where the almost 4-meter ceiling height is a real eye-catcher.

Layout:
Ground floor:
Through your own front garden, you reach the recessed front door, a hallway with a modern, extensive meter cupboard, a separate (guest) toilet with a small sink, a staircase with a storage cupboard, and a glass door to the open-plan kitchen. The modern fitted kitchen with wall units and tiling is equipped with all modern conveniences (gas stove, extractor hood, wide sink, dishwasher) and offers a beautiful view of the ornamental water. Adjacent is the spacious living room (approx. 50 m²) with wide sliding doors leading to the delightful southwest-facing back garden. This makes the back garden feel like an extension of the living room. The electric awning on the rear facade, combined with the enormous ceiling height, makes the living room extra cozy on warm summer days. The back garden features a brick (bicycle) shed of approximately 8 m², equipped with electricity. The back garden and shed are easily accessible via the rear entrance.

First floor (split-level):
Staircase from the ground floor to the playful upper floor thanks to the split-level layout. At the front and rear are two spacious bedrooms, one of which
has a walk-in closet (approx. 8 m²) and a shared modern bathroom and toilet. The bathroom features a large walk-in shower and a vanity with a mirror.
The layout lends itself to converting the walk-in closet into a third (children's) bedroom.

Second floor (split-level):
Open staircase from the first floor. On this floor, there are two bedrooms and a second bathroom. The master bedroom is very spacious
(approx. 20 m²) and features a full-width glass rear wall with French doors. The bathroom features a large walk-in shower, a vanity with a mirror, and a neatly concealed cupboard housing the central heating (high-efficiency boiler). There is also a deep storage cupboard on the landing that
can optionally serve as built-in wardrobes for the bedroom(s). The entire house features wooden window frames and double glazing. Heating is provided by central heating and radiators. The bathrooms feature luxurious tiling.

Surroundings:
The neighborhood is characterized by various green spaces, green belts, water features, and a wide variety of spacious buildings. There is a wide choice of primary and secondary schools nearby (the Karel Eykman comprehensive primary school, the Westwijzer, and the Triangel), as well as the International School and
various sports facilities for all ages. For daily shopping, the Westwijk shopping center is nearby, and Stadshart Amstelveen, a modern and upscale shopping area with a variety of entertainment venues, is easily accessible. The new Uithoornlijn, metro line 25, and bus connections with direct connections to Amsterdam city center are also nearby. The A9, A10, A2, and N201 highways are also within easy reach, providing direct connections to Schiphol Airport, Haarlem and Utrecht.
Lees meer

Kenmerken

Overdracht

Huurprijs
€ 3.600,- p/m gestoffeerd
Status
beschikbaar
Aanvaarding
in overleg

Bouw

Soort woning
woonhuis
Soort woonhuis
eengezinswoning
Type woonhuis
tussenwoning
Aantal woonlagen
3
Kwaliteit
normaal
Bouwvorm
bestaande bouw
Bouwperiode
1991-2000
Dak
plat dak
Voorzieningen
mechanische ventilatie, tv kabel, zonnecollectoren en glasvezel kabel

Energie

Energielabel
A+
Verwarming
c.v.-ketel
Warm water
c.v.-ketel
C.V.-ketel
gas gestookte combi-ketel uit 2025 van Intergas Kombi Kompakt HRE 28/24A, eigendom

Oppervlakten en inhoud

Woonoppervlakte
153 m²
Perceeloppervlakte
140 m²
Inhoud
231 m³

Indeling

Aantal kamers
5
Aantal slaapkamers
4

Buitenruimte

Ligging
aan rustige weg, in woonwijk en vrij uitzicht

Garage / Schuur / Berging

Schuur/berging
vrijstaand steen
Lees meer

Locatie

Interesse? Neem contact op met de makelaar!

Ik wil*