Omschrijving

Bieden vanaf € 250.000,-k.k.

Perfecte starterswoning! Leuk en praktisch 2-kamer appartement met balkon op het westen, gelegen op de 9e etage met een woonoppervlakte van ca. 42m².

Het appartement heeft een prachtig vrij uitzicht over Oegstgeest met veel groen. Op loopafstand vindt u het Irispark met molen, vijver en winkelcentrum "De Lange Voort". Het appartement is voorzien van dubbel glas, deels nieuwe kunststof kozijnen en beschikt over een gezamenlijke fietsenstalling in de onderbouw.

De ligging van het complex is zeer gunstig. Op loopafstand bevindt zich winkelcentrum De Lange Voort waar u terecht kunt voor de dagelijkse boodschappen en meer. Daarnaast liggen diverse sportverenigingen, de binnenstad van Leiden, station Leiden Centraal en de stranden van Noordwijk en Katwijk op korte afstand. Ook de uitvalswegen richting de grote steden zijn snel en gemakkelijk bereikbaar. Het complex is goed onderhouden en ligt in een prettige buurt met winkels, scholen en veel groen.

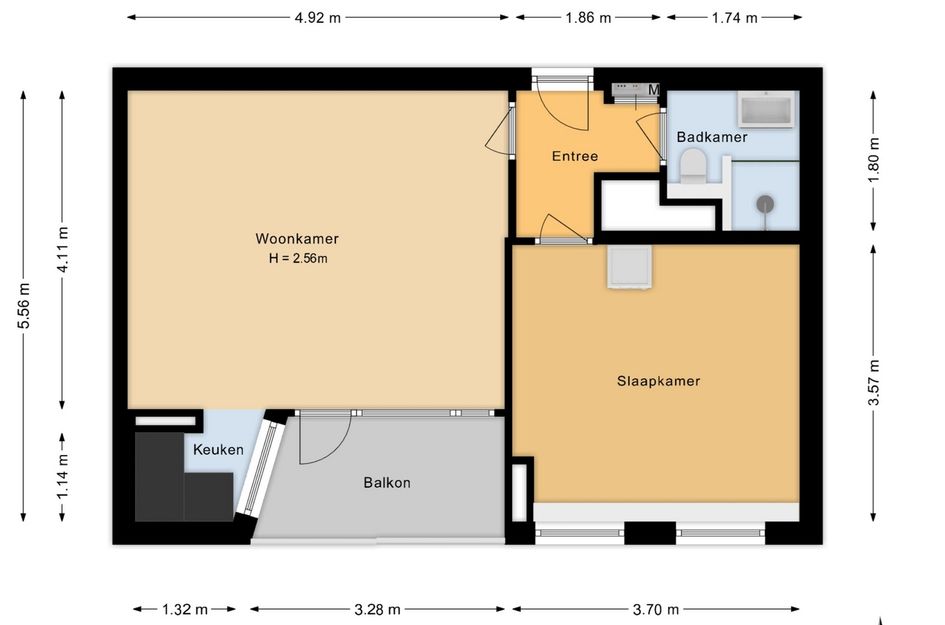
Indeling
Via de hal met vaste kast heeft u toegang tot de badkamer, de slaapkamer en de woonkamer.

De badkamer is modern en luxe uitgevoerd met een regen-/stortdouche, een hangend toilet, een wastafel met meubel en een designradiator.

De slaapkamer is voorzien van kunststof kozijnen met op maat gemaakte plissé gordijnen en beschikt over een vaste kast met ruimte voor de wasmachine en droger.

De woonkamer is ruim en licht en biedt voldoende plek voor zowel een zithoek als een eettafel. Vanuit de woonkamer is er toegang tot de keuken en het zonnige balkon. De op maat gemaakte raamdecoratie in de woonkamer, bestaande uit fraaie zwarte lamellen, blijft achter.



Balkon
Het zonnige balkon, gelegen op het westen biedt uitzicht over Oegstgeest en de groene omgeving.

Bijzonderheden
- Bieden vanaf prijs € 250.000 k.k.
- Woonoppervlakte: ca. 42 m².
- Voorzien van dubbel glas en deels nieuwe kunststof kozijnen.
- Moderne badkamer met regen-/stortdouche, hangend toilet, wastafel met meubel en designradiator.
- Slaapkamer met vaste kast en ruimte voor wasmachine en droger.
- Zonnig balkon op het westen met vrij uitzicht en veel groen.
- Gezamenlijke berging in de onderbouw.
- Complex voorzien van liftinstallatie.
- Nabij winkelcentrum De Lange Voort, sportvoorzieningen, scholen en openbaar vervoer.
- Uitvalswegen richting de grote steden eenvoudig bereikbaar.
- Energielabel E
- Bouwjaar 1965
- VvE-bijdrage: ca. € 212,17 per maand (incl. o.a. onderhoud, schoonmaak, opstalverzekering en reserveringen).
- Stookkosten: gemiddeld ca. € 74,- per maand (afhankelijk van verbruik).
Lees meer

Kenmerken

Overdracht

Vraagprijs
€ 250.000,- k.k.
Status
onder bod
Aanvaarding
in overleg

Bouw

Soort woning
appartement
Soort appartement
portiekflat
Aantal woonlagen
1
Woonlaag
10
Kwaliteit
normaal
Bouwvorm
bestaande bouw
Bouwperiode
1960-1970
Open portiek
nee
Dak
plat dak
Keurmerken
energie Prestatie Advies
Voorzieningen
mechanische ventilatie en tv kabel

Energie

Energielabel
E
Verwarming
blokverwarming
Warm water
centrale voorziening

Oppervlakten en inhoud

Woonoppervlakte
42 m²
Buitenruimte oppervlakte
5 m²

Indeling

Aantal kamers
2
Aantal slaapkamers
1

Buitenruimte

Ligging
vrij uitzicht
Lees meer

Locatie

Interesse? Neem contact op met de makelaar!

Ik wil*