Koningslinde
Koningslinde
Koningslinde
Koningslinde
Koningslinde
Koningslinde
Koningslinde
Koningslinde
Koningslinde
Koningslinde
Koningslinde

Koningslinde

Wemeldinge

€ 419.000,- v.o.n.

Omschrijving

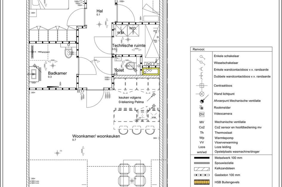
Bij binnenkomst in het gelijkvloerse 3-kamerappartement staat u in de hal/entree. Dit is het centrale punt van uw appartement en vanaf deze plek heeft u toegang tot alle woonvertrekken. Vanuit de hal heeft u bij binnenkomst direct toegang tot de meterkast.
Aan uw linker- en rechterzijde zijn twee slaapkamers beschikbaar. Loopt u verder de hal in, dan is er de technische ruimte. Hier vindt u de warmtepomp en de witgoedaansluitingen. Naast de technische ruimte bevindt zich een separaat toilet. Aan de overzijde van het toilet is de badkamer beschikbaar.
Aan het einde van de hal is er toegang tot de lichte woonkamer. De woonkamer met de open keuken. Deze is geheel naar eigen wensen samen te stellen. Middels een openslaande deur heeft u toegang tot uw balkon/terras met een sfeervol uitzicht op het Dorpsplein.

Planning project:
Start sloopwerk à eind april 2025
Start bouw à voorbereidende werkzaamheden juli 2025
Prognose oplevering à Q4-2026
LET OP! De planning is onder voorbehoud van een definitieve omgevingsvergunning.

- Gebruiksoppervlakte 94 m2
- Geheel gasloos
- Voorzien van een lucht/water warmtepomp
- Overal vloerverwarming en vloerkoeling
- Mechanische ventilatie met CO2 sensor
- Inclusief sanitair en tegelwerk in badkamer en toilet
- Kunststof kozijnen met HR++ glas
- Prachtig uitzicht op het sfeervolle dorpsplein
- Direct bij alle voorzieningen
Lees meer

Kenmerken

Overdracht

Koopsom
€ 419.000,- v.o.n.
Status
beschikbaar
Aanvaarding
in overleg

Bouw

Soort woning
appartement
Soort appartement
benedenwoning
Aantal woonlagen
3
Woonlaag
3
Bouwvorm
nieuwbouw
Open portiek
nee

Energie

Energielabel
A
Verwarming
vloerverwarming geheel

Oppervlakten en inhoud

Woonoppervlakte
89 m²

Indeling

Aantal kamers
3
Aantal slaapkamers
2

Garage / Schuur / Berging

Garage
parkeerplaats
Parkeergelegenheid
openbaar parkeren
Schuur/berging
vrijstaand hout
Lees meer

Interesse? Neem contact op met de makelaar!

Ik wil*