Houdringe
Houdringe

Houdringe

Amsterdam

prijs op aanvraag

Omschrijving

Bemiddelingskosten
Nee
Object
Direct bij de eigenaar
Borg
1415
Garantiestelling
Mogelijk
Huurtoeslag
Niet mogelijk
Inkomen eis
2,9 X Maandhuur Bruto
Huurtermijn
Onbepaalde termijn
Oplevering
Kaal
Lees meer

Kenmerken

Overdracht

Huurprijs
prijs op aanvraag
Status
beschikbaar
Aanvaarding
in overleg

Bouw

Soort woning
appartement
Soort appartement
bovenwoning
Aantal woonlagen
1
Woonlaag
1
Bouwvorm
bestaande bouw
Bouwperiode
1971 - 1980
Open portiek
nee

Energie

Oppervlakten en inhoud

Woonoppervlakte
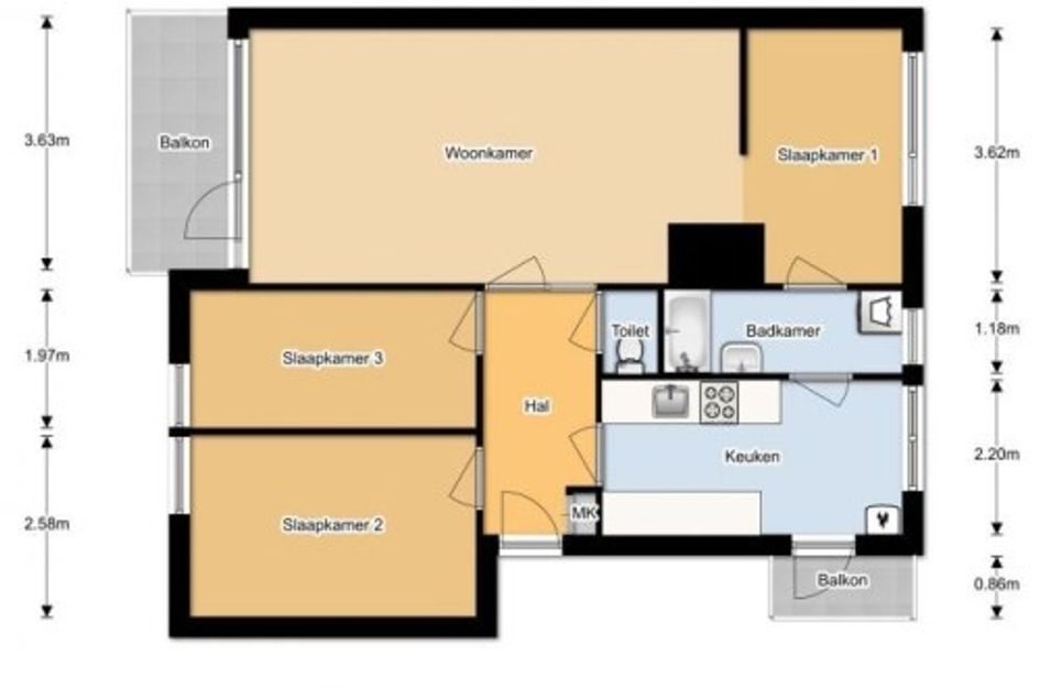
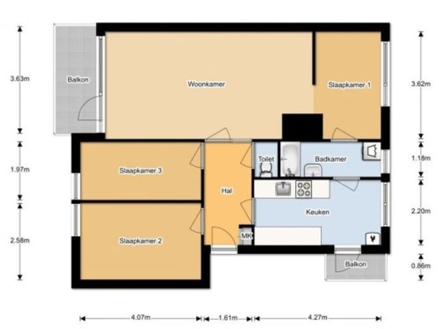
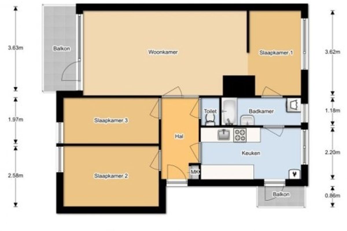
74 m²

Indeling

Aantal kamers
4
Aantal slaapkamers
3
Lees meer

Gallerij

Locatie

Interesse? Neem contact op met de makelaar!

Ik wil*