Stap binnen in deze bijzondere jaren ’30-woning aan de Emmalaan 9 in Sassenheim, waar karakter, comfort en functionaliteit samenkomen.
Dit ruime herenhuis is met gevoel voor stijl en behoud van originele details gerenoveerd, en combineert de grandeur van de Amsterdamse School met de gemakken van modern wonen. Het huis bevat vier goed bemeten slaapkamers en een kantoor, ideaal voor een gezin of voor wie ruimte zoekt voor hobby’s of logees.
Architectuur met karakter
De voorgevel van deze woning ademt de typische kenmerken van de Amsterdamse School: het gebruik van rode baksteen, de verfijnde metselverbanden en de horizontale accenten in de kozijnen geven de woning een uitgesproken en tijdloos karakter. De forse houten voordeur, omlijst door zorgvuldig vormgegeven glas-in-loodramen, vormt een uitnodigend middelpunt en benadrukt de ambachtelijke bouwstijl. Ook binnen zijn diverse originele stijlelementen behouden, wat zorgt voor een warme, authentieke uitstraling.
Licht en ruimte
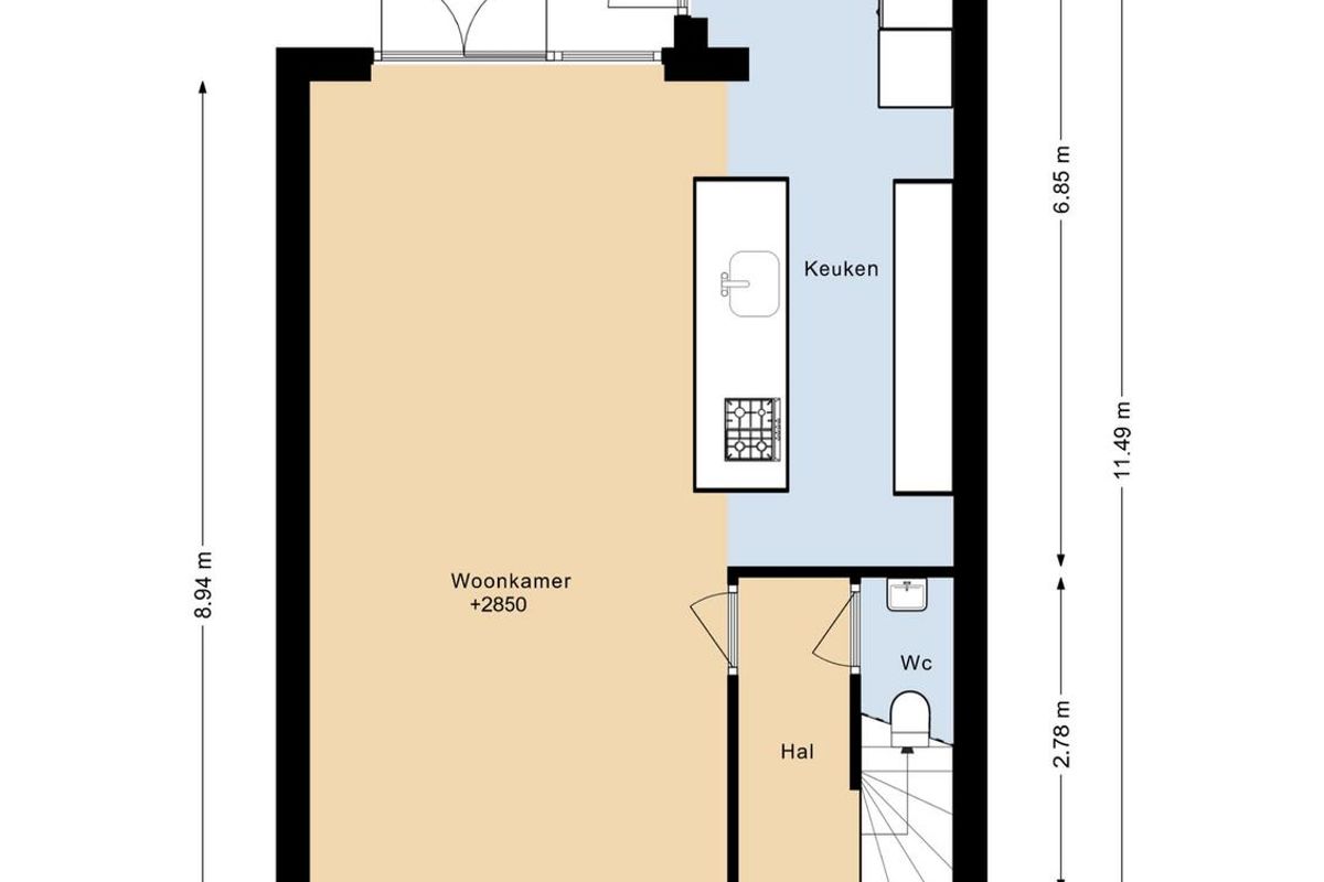
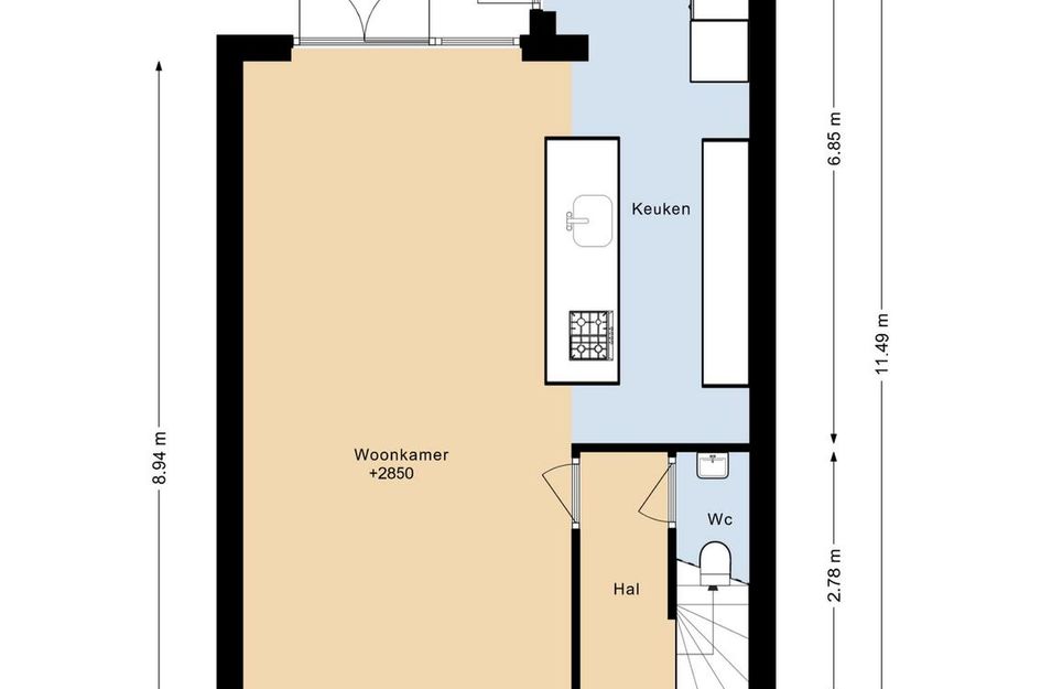
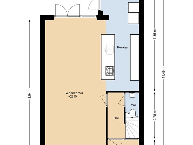
Bij binnenkomst ervaart u direct de royale lichtinval dankzij de grote raampartijen en de open indeling. De woonkamer is een sfeervolle plek waar de hoge plafonds en de houten vloer bijdragen aan een ruimtelijk gevoel. De moderne Bulthaup keuken is een ware eyecatcher: strak vormgegeven, voorzien van hoogwaardige inbouwapparatuur en met een groot kookeiland dat uitnodigt tot samen koken en genieten. Het is een perfecte balans tussen modern comfort en klassieke elegantie.
Op de eerste verdieping treft u twee ruime slaapkamers, de ouderslaapkamer heeft een breed balkon met zicht op de fraaie tuin en maatwerk inbouwkasten. De badkamer is modern ingericht, met een inloopdouche, vloerverwarming en een strak wastafelmeubel.
Daarnaast beschikt deze etage over een aparte kantoorruimte, waardoor thuiswerken comfortabel en efficiënt wordt.
De tweede verdieping biedt twee ruime slaapkamers, ieder met veel lichtinval via de dakkapel en een intieme sfeer door de zichtbare balken. De functionele voorzolder heeft de aansluiting voor de wasmachine en droger en heeft twee ruime bergruimtes.
Guesthouse/kantoor in de tuin
Een bijzonder pluspunt is het multifunctionele geïsoleerde kantoor in de tuin. Deze separate ruimte kan dienen als kantoor, atelier of gastenverblijf en maakt de woning extra flexibel in gebruik. Het biedt privacy en rust, terwijl het tegelijkertijd een naadloze verbinding heeft met de fraai aangelegde tuin.
Een groene oase
De achtertuin van 17 meter diep op het zuidoosten is een waar verlengstuk van de woning. Hier kunt u in alle rust genieten van het buitenleven, omgeven door groen en privacy. Het terras biedt ruimte voor een grote eettafel, ideaal voor lange zomeravonden met familie en vrienden. De schuur grenst aan een autovrij achterpad waar uw kinderen veilig kunnen spelen.
Locatie
De Emmalaan is een zeer geliefde straat in Sassenheim: rustig, groen en toch centraal. Winkels, scholen en het station bevinden zich op korte afstand, en ook de uitvalswegen richting Leiden, Den Haag en Amsterdam zijn snel bereikbaar. Hierdoor combineert deze woning het beste van twee werelden: wonen in een sfeervolle en karaktervolle buurt met alle voorzieningen binnen handbereik.
Duurzaamheid
Het huis heeft recent energielabel B verkregen dankzij dakisolatie, muurisolatie en volledig dubbele beglazing. Daarnaast beschikt het huis over 11 zonnepanelen.
Bijzonderheden:
- Woonoppervlakte 134 m2, inhoud 488 m3 en 204 m2 eigen grond
- Zo te betrekken
- Ideaal gezinshuis met 4 slaapkamers en kantoor
- Energielabel B
- Diverse extra’s w.o. zonnepanelen en zonwering
- Zonnige diepe tuin met multifunctioneel kantoor
- Achterom aanwezig
- Voor indeling en maatvoering zie plattegronden
Samengevat
Emmalaan 9 is een unieke woning waar historie en modern wooncomfort elkaar ontmoeten. Met zijn karaktervolle Amsterdamse School-details, vier slaapkamers, kantoor en een multifunctioneel (guest)house in de tuin, biedt dit huis alles wat u nodig heeft voor comfortabel en stijlvol wonen.
De vraagprijs is € 698.000,- k.k. en de oplevering voor dit unieke stukje oud-Sassenheim is Q2 2026