Broekdijk 44
Broekdijk 44
Broekdijk 44
Broekdijk 44
Broekdijk 44
Broekdijk 44
Broekdijk 44
Broekdijk 44
Broekdijk 44
Broekdijk 44
Broekdijk 44
Broekdijk 44
Broekdijk 44
Broekdijk 44
Broekdijk 44
Broekdijk 44
Broekdijk 44
Broekdijk 44
Broekdijk 44
Broekdijk 44

Broekdijk 44

Bruchterveld

€ 292.500,- k.k.

Omschrijving

Een unieke kans aan de Broekdijk 44 (-A) in Bruchterveld !!

Vrijstaand, twee-onder-een-kap of allebei? De mogelijkheden zijn hierbij eindeloos!
(zie tevens onze aanmelding op Funda voor 44 en 44a)

Zeg nou zelf: hoe vaak kom je een huis tegen dat zich zó flexibel laat indelen als Broekdijk 44-A in het rustige Bruchterveld? De ruimte, de vrijheid, het comfort – en dat alles op een royaal perceel met kansen die je niet vaak vindt. Woon je straks met het hele gezin? Of wil je ouders levensloopbestendig bij je laten wonen – óf meteen groot dromen en kijken naar die extra bouwkavel waar stiekem al een principe-akkoord op ligt? Aan deze kant van het dorp grenst jouw leven straks alleen nog aan je eigen plannen.

Landelijk wonen zonder beperkingen
Dit is toch echt zo'n object dat binnen de kortste keren de aandacht trekt. Waarom? Omdat het alles behalve standaard is. Letterlijk alles kan hier: vrijstaand wonen, een tweekapper, misschien zelfs dubbele bewoning. Het riante perceel geeft alle ruimte aan evt. kleinvee, een uit de hand gelopen hobby, of gewoon een heerlijke tuin waar je je kinderen ziet spelen en de buren jaloers meekijken.

Je eigen onderneming/praktijk en/of kantoor aan huis? Geen probleem!
Weet je die droom van een bedrijf aan huis? Die plek waar je werk en privé toch makkelijk kunt scheiden, maar waar je ook makkelijk even oversteekt naar jouw naastgelegen woning voor een vers gezette kop koffie? Hier kan het gewoon. Met dit perceel én pand hebben we het over serieuze opties voor thuiswerkers, ondernemers, klussers, hobbyisten – noem maar op.

En dan hebben we het nog niet eens gehad over de mogelijkheid tot een extra bouwkavel: ga aan de slag met je architect, neem je tijd om te verzinnen wat je hier wilt bouwen en maak van deze plek jouw eigen paleis. Procedure al gestart? Check! Dus niet alleen dromen, maar ook doen.

Perfect voor samengestelde gezinnen of samenwonen met ouders:
Broekdijk 44(-A) biedt echt uitkomst als jouw familie groter, veelzijdiger of meer verweven is dan gemiddeld. Denk bijvoorbeeld aan twee gezinnen die graag dicht bij elkaar wonen, een samengesteld gezin met kinderen uit verschillende huishoudens, of mensen die hun ouders een fijne levensloopbestendige plek gunnen – zonder ze al te ver weg te hoeven parkeren. En geloof ons: in het gemoedelijke Bruchterveld voelt iedereen zich snel thuis.

Zowel het geheel als afzonderlijk zijn te koop.
Knus, degelijk én boordevol potentie!

Over het huis zelf trouwens: gebouwd in 1982, dus die degelijkheid van vroeger (je weet wel, stevige muren, klassiek vakwerk), maar tegelijk al voorbereid op de wensen van nu. Natuurlijk kun je losgaan op verduurzamen, uitbouwen of moderniseren, want de basis staat als een huis – letterlijk en figuurlijk.

Woning aan de Broekdijk 44a:
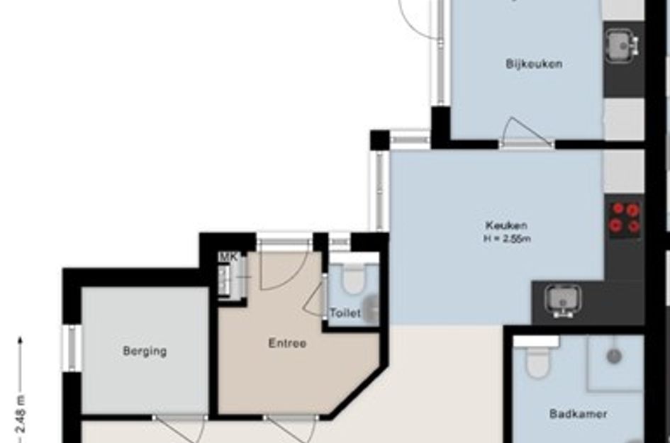
Middels entree betreedt men de hal met o.a. toilet met fonteintje, meterkast en trapopgang. Via de keuken met inbouwapparatuur betreedt men de woonkamer met aangebouwde erker. Aan de achterzijde bevinden zich de ruime bijkeuken en aangebouwde berging.

Eerste verdieping:
Op de verdieping bevinden zich een overloop met drie slaapkamers, bergruimte, stookruimte en badkamer die vergroot is dmv een dakkapel. De badkamer kent een wastafel, douche en toilet.

Buitenom:
Op het perceel bevinden zich meerdere mogelijkheden om de auto te parkeren alsmede een royale garage/berging met geitenhok en een overkapping.

Woning aan Broekdijk 44:
Middels entree betreedt men de hal met toilet met fonteintje, meterkast en toegang tot de straatgerichte woonkamer. Op nummer 44 heeft u alles op de begane grond. Op de begane grond vindt u o.a. twee slaapkamers, badkamer met douche, wastafel en toilet.
Aan de achterzijde bevinden zich de woonkeuken, bijkeuken en aangebouwde berging.

Buitenom:
Op het perceel bevinden zich een lange oprit met meerdere parkeermogelijkheden alsmede een houten tuinhuis.

Bijzonderheden:
- Als geheel te koop en/of als afzonderlijk wooneenheden te koop;
- Tal van mogelijkheden: kantoor en/of praktijk aan huis;
- Mantelzorg- en/of ouders/kinderen naast je wonen;
- Er ligt een principe akkoord voor bouwkavel naast nr. 44a;
- E.e.a. dient nog nieuw ingemeten te worden door het Kadaster.
- Kosten inmeting Kadaster voor rekening koper(s);

Kenmerken algemeen:
- Bouwjaar 1982;
- Totale perceeloppervlakte: ca. 3.980 m²
- Totale woonoppervlakte: ca. 238 m².

Kenmerken Broekdijk 44:
- Woonoppervlakte: ca. 93 m²;
- Perceeloppervlakte: nader in te meten;
- C.v. installatie: Intergas HR, 2008;
- Houten tuinhuis/berging ca. 13 m².

Kenmerken Broekdijk 44a:
- Woonoppervlakte: ca. 145 m²;
- Perceeloppervlakte: nader in te meten;
- C.v. installatie: Remeha HR, 2008;
- 9 zonnepanelen (2022, 420 wp per paneel)
- Schilderwerk 2024;
- Vrijstaande garage/berging ca. 59 m²;
- Overkapping ca. 16 m².

Let op:
- kaveloppervlaktes zijn fictief en dienen nog exact te worden ingemeten;
- niet alle kenmerken kloppen, check zowel tekst als plattegronden;
- het adres broekdijk 44b is fictief om de totale aanmelding compleet te maken.

Vraagprijzen:
Broekdijk 44: € 292.500,- k.k.
Broekdijk 44a: € 420.000,- k.k. (excl. (nog) te realiseren bouwkavel)
Broekdijk 44a: € 480.000,- k.k. (incl. (nog) te realiseren bouwkavel) (zie laatste foto)

Aanvaarding: in overleg.
Lees meer

Kenmerken

Overdracht

Vraagprijs
€ 292.500,- k.k.
Status
verkocht onder voorbehoud
Aanvaarding
in overleg

Bouw

Soort woning
woonhuis
Soort woonhuis
bungalow
Type woonhuis
halfvrijstaande woning
Aantal woonlagen
1
Bouwvorm
bestaande bouw
Bouwjaar
1982
Bouwperiode
1981 - 1990
Onderhoud binnen
uitstekend
Onderhoud buiten
uitstekend
Dak
plat dak
Isolatie
muurisolatie, spouwmuur

Energie

Energielabel
B
Verwarming
cv-Ketel
Warm water
cv-Ketel
C.V.-ketel
gas gestookte combi-ketel uit 2008 van Intergas HR, eigendom

Oppervlakten en inhoud

Woonoppervlakte
93 m²
Perceeloppervlakte
900 m²
Inhoud
272 m³
Bergruimte oppervlakte
12 m²

Indeling

Aantal kamers
3
Aantal slaapkamers
2

Garage / Schuur / Berging

Schuur/berging
ja
Lees meer

Locatie

Interesse? Neem contact op met de makelaar!

Ik wil*