Omschrijving

Koopsom vanaf € 900.000,--
Vrijstaand, landelijk en luxe wonen met vrij uitzicht over het polderlandschap!

Op een zeer centrale locatie in de Randstad, met prachtig vrij uitzicht over het Hollandse polderlandschap, staat deze vrijwel nieuwe en energiezuinige (A+++) vrijstaande woning (bouwjaar 2023). De woning is vanuit de bouw op de begane grond en 1e verdieping royaal uitgebouwd en voorzien van dakkapellen.

De woning beschikt over een zonnige tuin op het zuidwesten, een ruime berging en parkeergelegenheid voor meerdere auto's op eigen terrein.

Dit stijlvolle en hoogwaardig afgewerkte geheel is gebouwd met eersteklas materialen en optimaal geïsoleerd. De woning is volledig voorzien van vloerverwarming,
vloerkoeling en beschikt over een warmtepomp en 18 zonnepanelen.

Dankzij de sfeervolle afwerking en het recente bouwjaar is de woning instapklaar en direct te betrekken!

Ligging
De woning kenmerkt zich door de vrije ligging te midden van groen en water. Op fietsafstand bevinden zich diverse horecagelegenheden, een buitenzwembad, sportverenigingen en een basisschool.

Bilderdam ligt centraal in het Groene Hart van de Randstad en is uitstekend bereikbaar. Dankzij de goede ontsluiting via de A4, A44 en N207 zijn de grote steden Amsterdam, Utrecht en Den Haag binnen een half uur te bereiken. Bovendien ligt luchthaven Schiphol op slechts 15 minuten rijden.

Leimuiden, met ongeveer 4.500 inwoners, heeft de charme en uitstraling van een gezellig dorp, terwijl het beschikt over alle belangrijke voorzieningen.

Stap de voordeur uit en u bevindt zich direct in het uitgestrekte polderlandschap, met diverse fiets- en wandelroutes in de directe omgeving. Daarnaast zijn er verschillende meren en vaarten in de buurt, ideaal voor liefhebbers van varen en watersport. In deze prachtige woonomgeving kunt u heerlijk op pad, zowel op het water als per fiets.

Niet alleen Bilderdam en Leimuiden, maar ook de omliggende dorpen bieden uitgebreide recreatiemogelijkheden, van een uitgebreid ontbijt tot een sfeervol diner. Dankzij de vele pontjes in de regio is het eenvoudig om de omgeving per fiets of boot te verkennen.

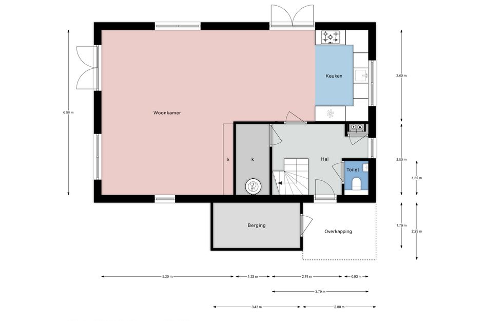
Indeling
Via de eigen toegangsweg, die gedeeld wordt met slechts vier woningen, bereikt u de inrit met parkeergelegenheid voor meerdere auto's op eigen terrein, direct naast de woning. Hier bevindt zich tevens een laadpaal voor een elektrische auto. De overdekte entree biedt toegang tot zowel de ruime berging, met volop praktische opbergruimte, als de royale hal van de woning.

Entree woning:
Bij binnenkomst treft u een ruime hal met een garderobe, een moderne toiletruimte met vrijhangend toilet en fonteintje, een uitgebreide meterkast en een handige berging onder de trap met veel opbergruimte.

De heerlijke woonkeuken biedt volop ruimte voor een grote eettafel en is uitgerust met een luxe U-vormige keukenopstelling met diverse inbouwapparatuur. De grote openslaande deuren geven niet alleen direct toegang tot het zonneterras en de tuin, maar bieden ook een prachtig vrij uitzicht over groen en water. Dankzij de grote, tot de grond reikende raampartijen en de dubbele openslaande deuren baadt de keuken en woonkamer in natuurlijk daglicht, wat zorgt voor een aangename en lichte woonsfeer.

De ruime, tuingerichte woonkamer bevindt zich aan de voorzijde van de woning en beschikt over veel vaste kastruimte. Vanuit uw luie stoel of vanaf de bank geniet u hier van een schitterend vrij uitzicht.

Hoge plafonds, grote raampartijen en een stijlvolle PVC-vloer met houtlook dragen bij aan de warme sfeer en het comfortabele woongevoel van deze prachtige woning.

Eerste verdieping
De ruime en lichte overloop is voorzien van een dakkapel, wat zorgt voor extra lichtinval en een ruimtelijk gevoel. Hier bevindt zich een separate toiletruimte met een vrijhangend toilet en fonteintje. Daarnaast is er een praktische vaste kast met aansluitingen voor de wasmachine en droger, evenals volop bergruimte.

De royale master bedroom, gelegen aan de voorzijde van de woning, heeft een opengewerkte kap, wat een extra ruimtelijk effect creëert. Over de gehele breedte van de kamer bevindt zich een vaste kastenwand, waardoor er meer dan voldoende opbergruimte is.

De luxe badkamer is geheel betegeld en voorzien van een comfortabel ligbad, een ruime inloopdouche met glazen douchewand en regendouche, een stijlvolle wastafel met badkamermeubel en een designradiator voor extra comfort.

De tweede en derde slaapkamer op deze verdieping zijn eveneens ruim van opzet en beschikken over een dakkapel, waardoor ze heerlijk licht en ruim aanvoelen. Beide kamers bieden voldoende ruimte voor een tweepersoonsbed, een kast en/of een bureau, waardoor ze perfect geschikt zijn als slaap-, werk- of studeerkamer. De slaapkamer aan de achterzijde geeft een mooie doorkijk naar het water van de 'Drecht

Tweede verdieping
De bergzolder is via een vlizotrap te bereiken en biedt volop bergruimte, ideaal voor het opbergen van seizoensgebonden spullen, koffers of andere opbergitems. Dankzij de praktische indeling kunt u deze ruimte optimaal benutten.

Tuin
De zonnige tuin rondom de woning is prachtig aangelegd met een combinatie van sierbestrating, een gazon en meerdere terrassen, waardoor u op elk moment van de dag een fijne plek in de zon of schaduw kunt vinden.

Dankzij de vrije ligging geniet u vanuit alle hoeken van de tuin van een prachtig uitzicht over groen en water. Aan de voorzijde van de woning is parkeergelegenheid op eigen terrein, en daarnaast is er extra parkeerruimte beschikbaar op het mandelige parkeerterrein, dat exclusief toebehoort aan de vier woningen die hieraan gelegen zijn.

Bijzonderheden
- Bouwjaar: 2023
- Gebruiksoppervlakte: 153m², waarvan 133 m² Wonen / 20m² overige inpandige ruimte.
- Duurzaam en energiezuinig: Volledig geïsoleerd en voorzien van energielabel A+++
- Zonnepanelen: 18 stuks aanwezig
- Voorzieningen: Autolader voor elektrische auto bij de eigen inrit
- Beschikt over een warmtepomp en een elektrische boiler
- Afwerking: Smaakvolle en luxe afwerking met oog voor detail
- Ligging: Vrije ligging met prachtig uitzicht over groen en water
- Gehele woning en berging voorzien van nieuw verduurzaamd (antraciet) hout (2025).
- Oplevering: In overleg

Koopsom vanaf: € 900.000,- | Vraagprijs: € 975.000,-
Alle biedingen vanaf € 900.000,- worden in overweging genomen.

Bent u geïnteresseerd in deze prachtige, duurzame en royale woning? Neem contact met ons op voor een bezichtiging!
Lees meer

Kenmerken

Overdracht

Koopsom
€ 900.000,- k.k.
Status
beschikbaar
Aanvaarding
in overleg

Bouw

Soort woning
woonhuis
Soort woonhuis
herenhuis
Type woonhuis
vrijstaande woning
Aantal woonlagen
2
Kwaliteit
luxe
Bouwvorm
bestaande bouw
Bouwperiode
2011-
Dak
zadeldak
Keurmerken
energie Prestatie Advies
Voorzieningen
airconditioning en zonnecollectoren

Energie

Energielabel
A+++
Verwarming
airconditioning, vloerverwarming geheel, warmtepomp en warmte terugwininstallatie

Oppervlakten en inhoud

Woonoppervlakte
153 m²
Perceeloppervlakte
336 m²
Inhoud
571 m³
Buitenruimte oppervlakte
6 m²

Indeling

Aantal kamers
4
Aantal slaapkamers
3

Buitenruimte

Ligging
aan rustige weg en vrij uitzicht
Tuin
Achtertuin met een oppervlakte van 115 m² en is gelegen op het zuidwesten

Garage / Schuur / Berging

Schuur/berging
aangebouwd hout
Lees meer

Locatie

Interesse? Neem contact op met de makelaar!

Ik wil*